خزانة تحكم كهربائية موحدة ، مع نظام busbar GRL
قامت GRL بتصميم خزانة توزيع طاقة موحدة من نوع بسبار في مصنع جين لونغ للسيارات الذي تم بناؤه حديثًا ، والذي يسهل صيانته.
 ؛
س
ينقسم خط إنتاج السيارات إلى أربعة روابط: الختم واللحام والرش والتجميع. يتحكم نظام التحكم الإلكتروني في خط الختم وخط اللحام وخط الرش ، في ورشة العمل الآلية. عندما يفشل خط الإنتاج ، يمكن أن يسبب خسائر فادحة ، لأن قيمة السيارة مرتفعة.
 ؛
 ؛
العملاء Challenge
- إذا تعطل خط إنتاج السيارات ، فستكون هناك خسائر اقتصادية ضخمة لأن إنتاج السيارات ينخفض. يجب أن تكون خزانة التحكم الكهربائية قابلة للخدمة بسهولة.
- هناك العديد من دوائر التحكم الكهربائية لمنتجات السيارات ، والخطوط فوضوية.
 ؛
حل
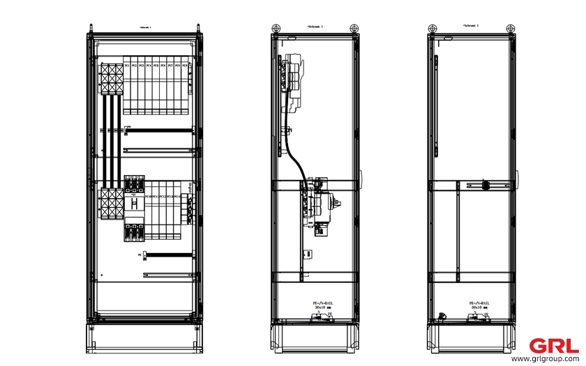
قامت GRL بتصميم خزانة التحكم الكهربائية واستخدمت نظام busbar في مشروع “خط إنتاج Kinglong Automobile”.
الخطة الأولى:
المفتاح الرئيسي هو قاطع دائرة حالة مصبوب ، والخط الرئيسي الوارد هو لوحة أسلاك نظام بسبار. الدائرة الفرعية هي قاعدة الصمامات. ربط busbars إلى لوحة تصاعد، وذلك باستخدام بين قوسين بسبار. يتم تعليق جميع مكونات نظام بسبار على قضبان النحاس لتشكيل دائرة كاملة.
الخطة الثانية:
المفتاح الرئيسي هو مفتاح عزل من نوع الصمامات ، ومفتاح الفرع هو مفتاح شريط. قم بتوصيل المفتاح بالشريط النحاسي ، باستخدام مقاطع busbar. قم بتوصيل الطبقات العلوية والسفلية من نظام التحكم الكهربائي بقضبان نحاسية ناعمة.
 ؛
(أ)دردشةPplication
- لوحات توزيع نظام بسبارمتوافقة. يمكن استخدام جميع العلامات التجارية لقواطع الدوائر في خزانة توزيع نظام busbar ، بحيث يمكن للمستخدم إعداد ما يكفي من المكونات الاحتياطية. عندما تفشل خزانة توزيع الطاقة لنظام busbar ، يمكن للعمال العثور بسرعة على المكونات الاحتياطية وإكمال الصيانة بسرعة.
- تصميم خزانة توزيع الطاقة لنظام busbar بسيط ويحتوي على عدد أقل من الحلقات. عندما تفشل خزانة توزيع الطاقة ، يمكن للعمال العثور بسرعة على الخط الخاطئ.
